| Starea de disponibilitate: | |
|---|---|
| Cantitate: | |
FUE05 este un vehicul utilitar de transport exploziv fără șenile cu o capacitate maximă de încărcare utilă de 5 tone. Vehiculul adoptă componente internaționale premium, un șasiu central articulat și un sistem de servodirecție complet hidraulic. Echipat cu frâne ude multi-disc complet închise care utilizează SAHR, vehiculul este propulsat de un motor turbo Cummins cu emisii scăzute, care respectă standardele de emisii China IV. Cabina certificată FOPS/ROPS integrează un afișaj multifuncțional pentru monitorizarea în timp real a echipamentelor și asistență la depanare.
Sistemul universal de șasiu cu atașare rapidă permite schimbări rapide, acceptând atașamente funcționale multiple pentru operațiuni diversificate. Mecanismul de schimbare rapidă permite înlocuirea sculei în cinci minute.
| categorie | Detalii |
|---|---|
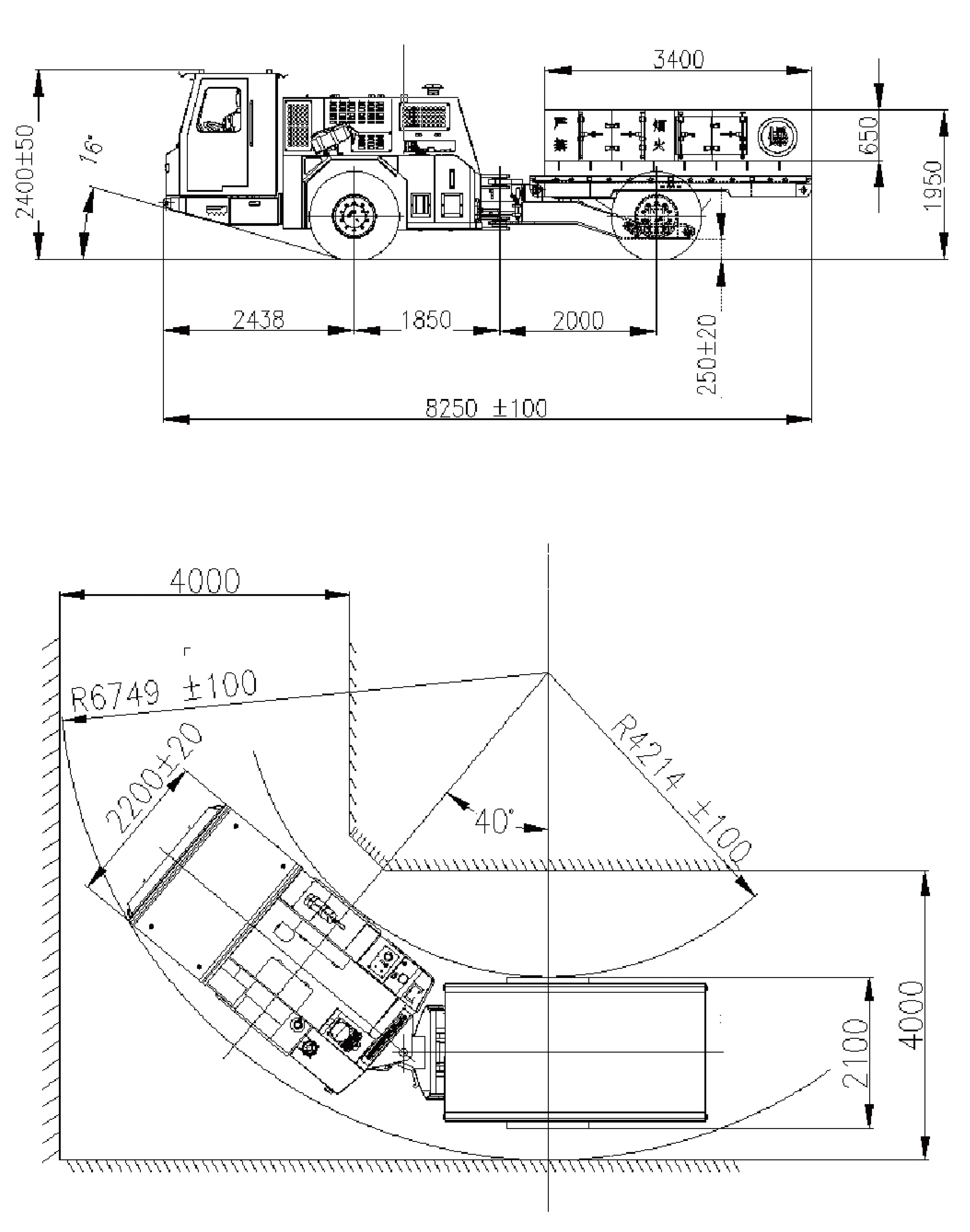
| Performanță | Capacitate de încărcare utilă: 5.000 kg Dimensiunea compartimentului: 3.200 × 5.500 × 1.800 mm Lățimea ușii compartimentului: 1.700 mm Număr ușă compartiment: 5 buc Forța maximă de tracțiune: 110 kN |
| Dimensiunea | Lungime: 8.250 ± 100 m mLățime: 2.200 ± 20 mm Înălțime: 2.400 ± 50 mm Garda la sol: 250 ± 20 mm Unghi de virare: ±40° Raza de rotire interioara: 4.214 ± 100 mm Raza de cotitură exterioară: 6.749 ± 100 mm |
| Viteză (nivel, încărcare completă) | Treapta 1: 5 ± 1 km/ Treapta a doua: 12 ± 1 km/h Treapta a 3-a: 24 ± 1 km/h |
| Sistem de alimentare | Motor: Cummins B5.9CS 4EFI, răcit cu apă, Tier 4, Euro Etapa IV 129 kW la 2.200 rpm, 760 N·m la 1.600 rpm |
| Sistem de evacuare | Purificator catalitic și amortizor DOC |
| Capacitatea rezervorului de combustibil | 140 L |
| Sistem hidraulic | Direcție complet hidraulică Supapa de încărcare și supapă de frână de serviciu: MICO Acumulator de frână: Leemin (filtru de retur de ulei) Rezervor ulei hidraulic: 200 L |
| Sistem electric | Releu electric și întrerupător: Schneide rController: Finlanda EPEC Detectarea defecțiunii motorului |
| Cabină (închisă) | Certificare FOPS/ROPS Aer conditionat rece Două uși pentru cabină Conducerea înainte Sistem de acces de contact în trei puncte pentru a intra rapid în cabină Scaun cu suspensie de joasă frecvență Camera de rezervă a vehiculului Cabina cu doua locuri Stergatori de parbriz in afara cabinei |
| Siguranță | Far intermitent Protectie portabila la foc 1 × 6 kg Alarma de fum Sistem de ventilatie |
| Opțiuni | Sistem automat de protecție împotriva incendiilor mUngere centralizată automată |


FUE05 este un vehicul utilitar de transport exploziv fără șenile cu o capacitate maximă de încărcare utilă de 5 tone. Vehiculul adoptă componente internaționale premium, un șasiu central articulat și un sistem de servodirecție complet hidraulic. Echipat cu frâne ude multi-disc complet închise care utilizează SAHR, vehiculul este propulsat de un motor turbo Cummins cu emisii scăzute, care respectă standardele de emisii China IV. Cabina certificată FOPS/ROPS integrează un afișaj multifuncțional pentru monitorizarea în timp real a echipamentelor și asistență la depanare.
Sistemul universal de șasiu cu atașare rapidă permite schimbări rapide, acceptând atașamente funcționale multiple pentru operațiuni diversificate. Mecanismul de schimbare rapidă permite înlocuirea sculei în cinci minute.
| categorie | Detalii |
|---|---|
| Performanță | Capacitate de încărcare utilă: 5.000 kg Dimensiunea compartimentului: 3.200 × 5.500 × 1.800 mm Lățimea ușii compartimentului: 1.700 mm Număr ușă compartiment: 5 buc Forța maximă de tracțiune: 110 kN |
| Dimensiunea | Lungime: 8.250 ± 100 m mLățime: 2.200 ± 20 mm Înălțime: 2.400 ± 50 mm Garda la sol: 250 ± 20 mm Unghi de virare: ±40° Raza de rotire interioara: 4.214 ± 100 mm Raza de cotitură exterioară: 6.749 ± 100 mm |
| Viteză (nivel, încărcare completă) | Treapta 1: 5 ± 1 km/ Treapta a doua: 12 ± 1 km/h Treapta a 3-a: 24 ± 1 km/h |
| Sistem de alimentare | Motor: Cummins B5.9CS 4EFI, răcit cu apă, Tier 4, Euro Etapa IV 129 kW la 2.200 rpm, 760 N·m la 1.600 rpm |
| Sistem de evacuare | Purificator catalitic și amortizor DOC |
| Capacitatea rezervorului de combustibil | 140 L |
| Sistem hidraulic | Direcție complet hidraulică Supapa de încărcare și supapă de frână de serviciu: MICO Acumulator de frână: Leemin (filtru de retur de ulei) Rezervor ulei hidraulic: 200 L |
| Sistem electric | Releu electric și întrerupător: Schneide rController: Finlanda EPEC Detectarea defecțiunii motorului |
| Cabină (închisă) | Certificare FOPS/ROPS Aer conditionat rece Două uși pentru cabină Conducerea înainte Sistem de acces de contact în trei puncte pentru a intra rapid în cabină Scaun cu suspensie de joasă frecvență Camera de rezervă a vehiculului Cabina cu doua locuri Stergatori de parbriz in afara cabinei |
| Siguranță | Far intermitent Protectie portabila la foc 1 × 6 kg Alarma de fum Sistem de ventilatie |
| Opțiuni | Sistem automat de protecție împotriva incendiilor mUngere centralizată automată |


Situat în zona de dezvoltare economică Laixi din orașul Qingdao, FAMBITION este un producător binecunoscut și specializat de echipamente minieră fără șenile.
Drepturi de autor © 2024 QINGDAO FAMBITION HEAVY MACHINERY CO.,LTD. Toate drepturile rezervate. | Sitemap | Politica de confidențialitate